
About Fenestra SE
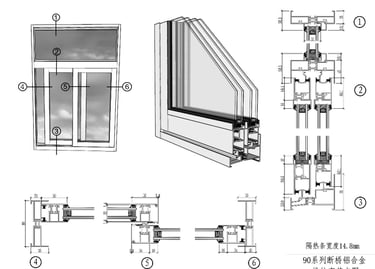
Fenestra SE is our selective sliding window series, which comes with a double 6mm tempered glass with 12mm argon. In comparison with traditional sliding windows with common glasses, the Fenestra SE has a much better performance in thermal and noise insulation, a longer service life, and a better aesthetic.
1 year
20-30
Years of service life
Warranty






Available Colors

More about SE
Mosquito net included
Hardware and handles included
Ready for installation
Custom color available
Security window lock


Thermal break aluminum 90 Series Sliding Windows





Contact Us
For inquiries about our top quality, customizable windows, please reach out to us today.


